Aktuelle Projekte
Mehrfamilienhaus in Gröbenzell
Gröbenzell mit seinem grünen Umfeld, der Nähe zu vielen beliebten Freizeitplätzen, den nahe gelegenen Seen, dem Olchinger Golfplatz und vieles mehr, stellt genau die richtige Symbiose zwischen freiem Leben in einer überschaubaren „Land-Gemeinde“ und der Kurzverbindung zur Metropole München dar.
München ist nur 16 km entfernt, entweder praktischerweise per S-Bahn – (die Haupteinkaufs – „Kirchenstrasse“ mit S-Bahnhof erreicht man in ca. 10 Gehminuten) – oder mit der neuen Autobahnverbindung nach München und alle anderen Richtungen.
Optimal ist die Lage: Zur einen Seite der kurze Weg zum Zentrum – zur anderen die „Einkaufsmeile“ mit allen Supermärkten wie Tengelmann, Aldi, Lidl, Bio-Markt, DM-Drogeriemarkt uvm.
München ist nur 16 km entfernt, entweder praktischerweise per S-Bahn – (die Haupteinkaufs – „Kirchenstrasse“ mit S-Bahnhof erreicht man in ca. 10 Gehminuten) – oder mit der neuen Autobahnverbindung nach München und alle anderen Richtungen.
Optimal ist die Lage: Zur einen Seite der kurze Weg zum Zentrum – zur anderen die „Einkaufsmeile“ mit allen Supermärkten wie Tengelmann, Aldi, Lidl, Bio-Markt, DM-Drogeriemarkt uvm.
Die Wohnungsgrundrisse sind jetzt noch veränderbar
– in der Grösse und der Art.
So kann ggf. das EG auch als Wohnbüro genutzt werden,
das helle Souterrain ist ohnehin in Teilbereichen mit in die Wohnfläche integriert und gut nutzbar.
Das Gebäude entspricht in der Art,
der Ausführung und Ausstattung hohen Ansprüchen:
die kaum noch Wünsche offen lässt.
der Ausführung und Ausstattung hohen Ansprüchen:
- Schöne und ansprechende zeitlose Architektur mit grosszügigen Grundrissen
- Beste solide Ziegel-Effizienz-Bauweise.
- Zukunftsweisendes Heizsystem durch
Bio-Blockheizwerk: energiesparend – umweltbewusst
– komfortabel mit Fussboden-Heizung
die kaum noch Wünsche offen lässt.

zum vergrössern auf die Fotos klicken
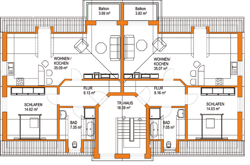
Dachgeschoss
Wohnen: 35,09 m2
Schlafen: 13,03 m2
Bad: 7,05 m2
Flur: 9,13 m2
>
zum vergrössern auf die Fotos klicken
Obergeschoss
Wohnen: 48,09 m2
Schlafen: 14,09 m2
Kind: 12,09 m2
Bad: 7,87 m2
Flur: 6,55 m2






